
















Vă invităm să descoperiți un apartament modern și spațios, situat într-o zonă de prestigiu din cartierul Băneasa, pe o stradă liniștită, caracteristică acestei zone de vile și case.
Apartamentul se află într-o clădire boutique cu regim redus de înălțime, fiind o alegere ideală pentru cei care caută confort, intimitate și un stil de viață relaxat, departe de agitația bulevardului principal, dar cu acces rapid la toate punctele de interes din nordul capitalei.
Imobilul este poziționat într-o zonă curată și civilizată, în imediata apropiere a bulevardului Aerogării, oferind acces facil către:
- Clinica privată și Spitalul Medicover
- Mall Băneasa și numeroase centre comerciale
- Săli de sport și centre de recreere
- Școli și grădinițe renumite
- Aeroportul Henri Coandă și șoseaua București-Ploiești
Această zonă este recunoscută pentru liniștea și siguranța pe care o oferă, fiind una dintre cele mai căutate din nordul Bucureștiului.
Imobilul în care se află apartamentul este unul de tip boutique, cu o singură scară și un singur apartament pe fiecare nivel.
Clădirea are un regim de înălțime mic (S+P+2E+M), fiind construită cu simț de răspundere, folosind materiale de calitate, inclusiv pereți interiori din cărămidă. Este dotată cu lift și dispune de parcare subterană la demisol, cu posibilitatea de a aloca un loc pentru fiecare apartament.
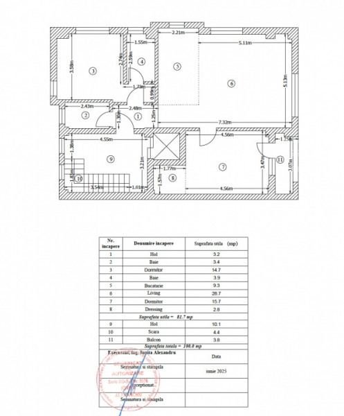
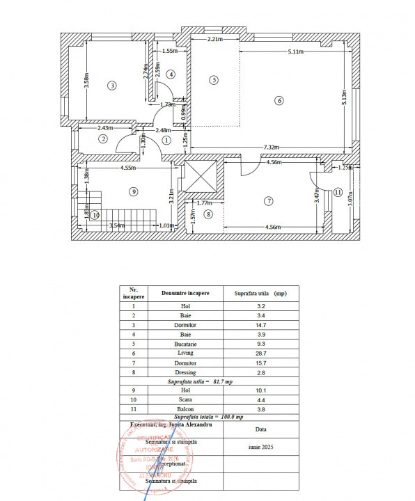
Acest tip de apartament, ce este oferit spre vânzare se află la etajul 2 și este compus din 3 camere bine compartimentate și dependințe, având o suprafață utilă totală de 100 mp. Un singur apaertamnet pe palier.
Este foarte bine configurat, oferind spațiu din abundență si un bun iluminat natural.
Suprafață utilă interioară de 81,7 mp, si balcon de 3,4 mp, ce oferă o priveliște plăcută asupra zonei
Înălțimea camerelor adaugă o senzație de deschidere și volum.
Camera de zi este generoasă si vine la pachet cu o bucătărie deschisă.
Apartamentul se predă complet finisat, cu finisaje premium și dotări de calitate superioară, inclusiv centrală termică individuală și încălzire în pardoseală.
De asemenea, dispune de posibilitatea unui loc de parcare subteran la demisol, oferind un plus de confort și siguranță.
Această ofertă este ideală atât pentru achiziție cu plata integrală, cât și prin credit ipotecar.
Imobilul este bine construit, fără riscuri, cu o situație juridică clară și complet transparentă.
Apartamentul se află sub exclusivitatea agenției noastre.
Pentru detalii suplimentare și vizionări, nu ezitați să contactați brokerul dedicat: